Двокімнатна квартира

вул. Рудницького
Тернопіль, Старий парк
77 000 $
1 328 $/м²
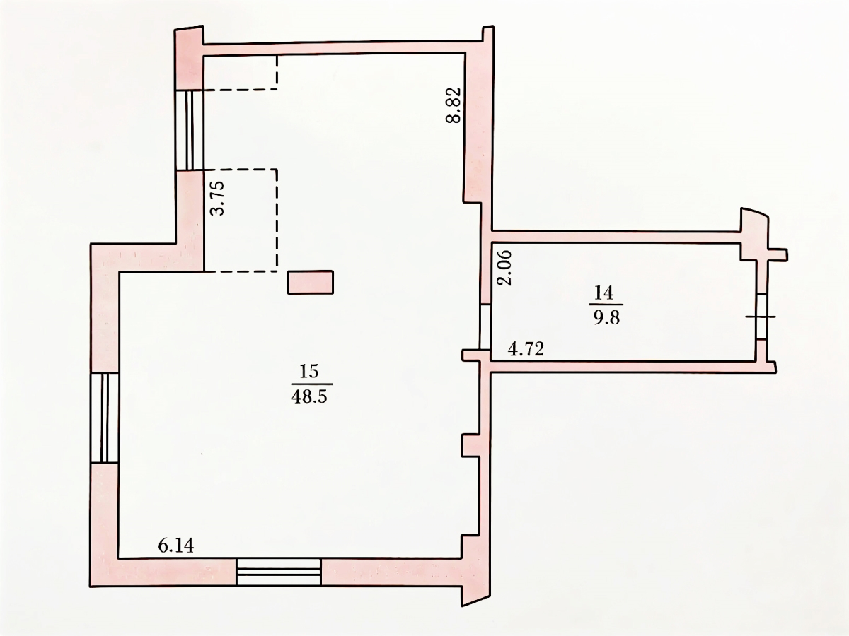
Площа загальна, м²:
58
Площа кухні, м²:
10
Поверх / поверхів:
4 / 4
Ринок нерухомості:
вторинний
Стан ремонту:
відмінний
Матеріал стін:
цегла
Перестінки:
блоки
Розташування:
внутрішня
Планування:
однорівнева
Тип кімнат:
ізольовані
Санвузол:
сполучений
Меблювання:
повне
Тип опалення:
індивідуальне газове
Комфортна та стильна квартира-мансарда з продуманим плануванням: простора кухня-студія і окрема спальня. Будинок котеджного типу. Квартира повністю укомплектована всією необхідною крупною технікою та меблями. Є велике двоспальне ліжко та розкладний диван. З техніки: холодильник, комбінована варильна поверхня, мікрохвильова піч-духовка, телевізор, пральна та сушильна машинки, кондиціонер. Територія будинку закрита, облаштована та доглянута: автоматичні ворота, дві альтанки загального користування. Є зручні паркомісця. З недоліків - невеликий санвузол. По документах - мансарда (творча студія), але ідеально підійде під оренду. Кухня-студія. Торг.
Поділитися:
Ріелтор Наталя агенція нерухомості «Лідер» м. Тернопіль
Ріелтор Наталя
Код (ID): 110342
Поновлено: 06.04.2026 р.