Трикімнатна квартира

вул. Гайова
Тернопіль, Центр
85 000 $
989 $/м²
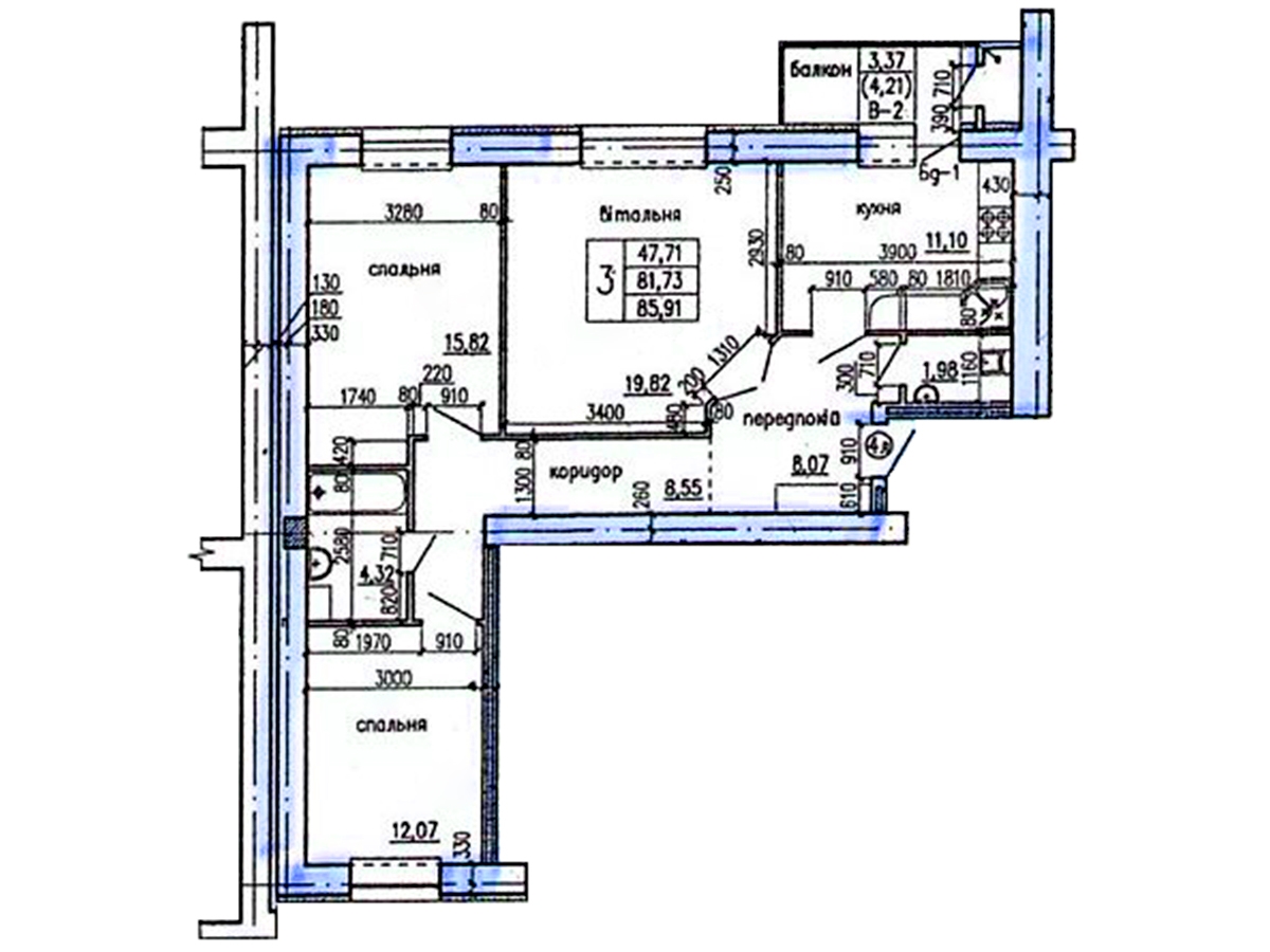
Площа загальна, м²:
86
Площа житлова, м²:
48
Площа кухні, м²:
11
Поверх / поверхів:
3 / 10
Рік побудови:
2026
Ринок нерухомості:
пайова участь
Стан ремонту:
сирий стан
Матеріал стін:
цегла
Перестінки:
блоки
Розташування:
внутрішня
Планування:
однорівнева
Меблювання:
без меблів
Тип опалення:
індивідуальне передбачено
Роки забудови:
2020-х років
Квартира має сучасне планування. Змонтовані покращені вікна. При бажані, за окрему плату можна придбати велику кладовку (5,8 кв.м) при вході в під'їзд. У дворі будинку є великий, сучасний дитячий майданчик. Поруч школа, дитячий садок, ринок, автовокзал, магазини, супермаркет.
Поділитися:
Ріелтор Мар'яна агенція нерухомості «Лідер» м. Тернопіль
Ріелтор Мар'яна
Код (ID): 109669
Поновлено: 21.02.2026 р.