Трикімнатна квартира

вул. Бандери
Тернопіль, Східний
84 000 $
914 $/м²
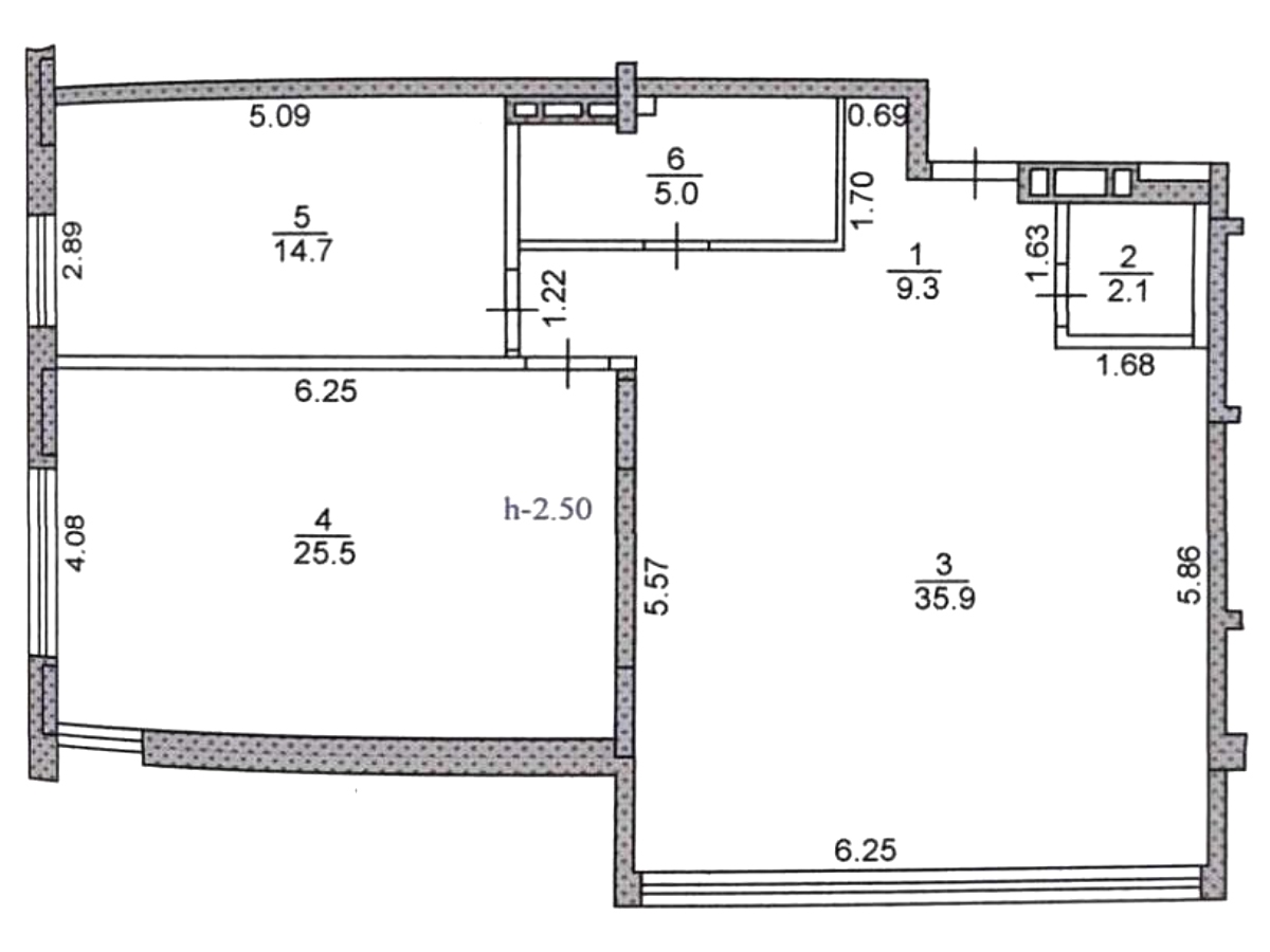
Площа загальна, м²:
92
Площа кухні, м²:
36
Поверх / поверхів:
9 / 10
Ринок нерухомості:
первинний
Житловий комплекс:
Таксопарк
Стан ремонту:
сирий стан
Матеріал стін:
моноліт + газоблоки
Перестінки:
блоки
Розташування:
кутова
Планування:
однорівнева
Тип кімнат:
ізольовані
Санвузол:
роздільний
Меблювання:
без меблів
Тип опалення:
індивідуальне розведено
Роки забудови:
2020-х років
Тепла підлога:
по всій квартирі
Дві кімнати та велика кухня-студія. Вже проведено індивідуальне опалення та встановлено теплу підлогу по всій квартирі. Зроблена вся електрика, сантехніка та поштукатурені стіни. Все підготовлено до встановлення кондиціонерів в залі і спальні. Вікна від забудовника замінені на якісні (шестикамерні). Вигляд із вікон на центр міста, стадіон та двір. На території комплексу підземний паркінг, супермаркет, салони краси, медичні клініки, тощо.
Поділитися:
Ріелтор Наталя агенція нерухомості «Лідер» м. Тернопіль
Ріелтор Наталя
Код (ID): 109192
Поновлено: 12.02.2026 р.