Агенція нерухомості «Лідер»
Головна
Квартири
1-кім. квартири
2-кім. квартири
3-кім. квартири
4-кім. квартири
5-кім. квартири
Кімнати в гуртожитках
Будинки
Приватні будинки
Дачні будинки
Частини будинків
Таунхауси
Дуплекси
Ділянки
Ділянки під забудову
Байківці
Великі Гаї
Гаї Гречинськi
Гаї Шевченківські
Смиківці
Шляхтинці
Тернопіль
Дачні ділянки
Великі Гаї
Смиківці
Комерційні ділянки
Ділянки сільгосппризначення
Приміщення
Комерційні приміщення
Офісні приміщення
Спеціальні приміщення
Пошук
Пошук квартир
Пошук будинків
Пошук ділянок
Пошук приміщень
Пошук по коду об’єкта
Для продавців
Перелік послуг для продавців
Порядок співпраці за ексклюзивним договором
Переваги укладання ексклюзивного договору
Передпродажна підготовка нерухомості
Банерна реклама на об’єкті нерухомості
Перелік документів для переоформлення
Для покупців
Перелік послуг для покупців
Публічний договір із покупцем
Вибір агенції нерухомості
Купівля без посередників
Калькулятор купівлі – продажу нерухомості
Вартість послуг
Дати оголошення
Про продаж квартири
Про продаж будинку
Про продаж ділянки
Про продаж приміщення
Про нас
Про агенцію
Наші спеціалісти
Адреса та контакти
Послуги для агенцій
Сервісний вхід
Карта сайту
Мої вподобання
Обрані пропозиції
Список порівняння
Переглянуті об’єкти
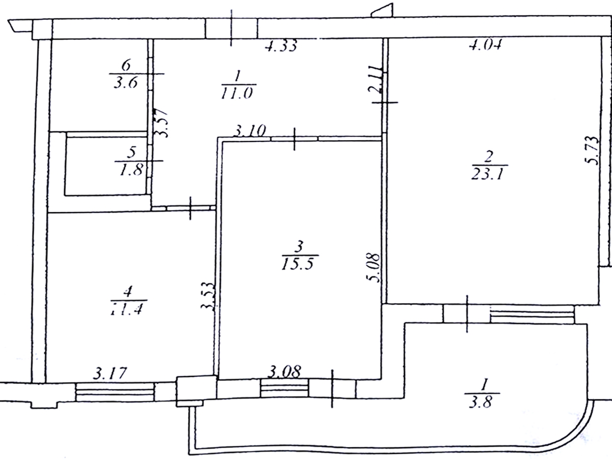
Двокімнатна квартира
вул. Гнатюка
Тернопіль, Новий світ
100 000 $
1 429 $/м²
В обране
Порівняти
Площа загальна, м²:
70
Площа житлова, м²:
38
Площа кухні, м²:
11
Поверх / поверхів:
2 / 10
Ринок нерухомості:
вторинний
Стан ремонту:
хороший
Матеріал стін:
цегла
Перестінки:
блоки
Розташування:
внутрішня
Планування:
однорівнева
Тип кімнат:
ізольовані
Санвузол:
роздільний
Меблювання:
повне
Тип опалення:
індивідуальне газове
Роки забудови:
2010-х років
Гараж в цокольному поверсі будинку. Двір закритого типу, є дитячий майданчик.
Поділитися:
Ріелтор
Мар'яна
(068) 350-33-50
Код (ID):
108551
Поновлено:
30.11.2025 р.
Повернутися до пошуку
Головна
Пошук
Купити квартиру
Купити будинок
Купити ділянку
Купити приміщення
Пошук по коду
Обране
Обрані пропозиції
Список порівняння
Переглянуті об’єкти
Послуги
Для продавців
Для покупців
Контакти