Двокімнатна квартира

вул. Київська
Тернопіль, Північний
57 000 $
704 $/м²
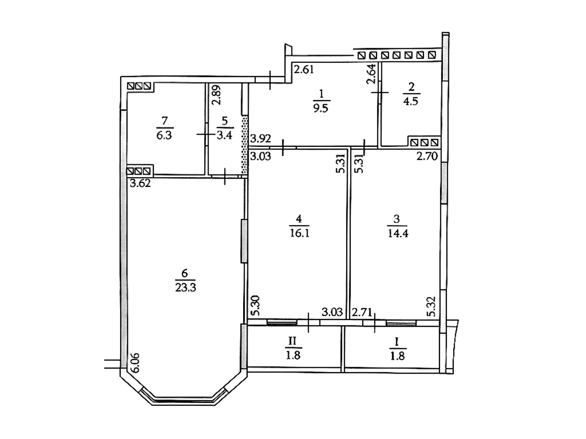
Площа загальна, м²:
81
Площа кухні, м²:
14
Поверх / поверхів:
6 / 11
Рік побудови:
2021
Ринок нерухомості:
первинний
Стан ремонту:
сирий стан
Матеріал стін:
моноліт + газоблоки
Перестінки:
блоки
Розташування:
внутрішня
Планування:
однорівнева
Тип кімнат:
ізольовані
Санвузол:
3 санвузли
Меблювання:
без меблів
Тип опалення:
індивідуальне передбачено
Роки забудови:
2020-х років
Терміново продається велика, простора 2-кімнатна квартира з гарним плануванням в новобудові. Велика вітальня, спальня, кухня, два санвузли, дві просторі лоджії. Планування в квартирі дозволяє зробити кухню-студію та 2 спальні. Встановлено металопластикові вікна, вхідні двері, лічильники на холодну воду, газ, електрику, проведено кабель для інтернету. Додатково до квартири додається кладова (знаходиться на поверсі). Будинок зданий в експлуатацію, вже проживають люди. Квартира знаходиться не біля ліфту. Зупинка громадського транспорту біля будинку. Поряд магазини, школа, садочок. Металопластикові вікна. Терміново.
Поділитися:
Ріелтор Мар'яна агенція нерухомості «Лідер» м. Тернопіль
Ріелтор Мар'яна
Код (ID): 107627
Поновлено: 06.12.2025 р.