Двокімнатна квартира

вул. Опільського
Тернопіль, Центр
63 500 $
1 008 $/м²
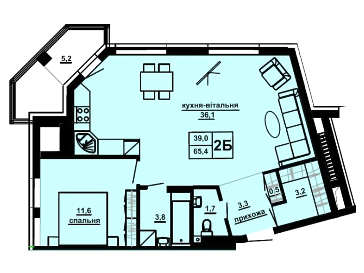
Площа загальна, м²:
63
Площа житлова, м²:
37
Поверх / поверхів:
6 / 16
Рік побудови:
2025
Ринок нерухомості:
пайова участь
Житловий комплекс:
Домініканський
Стан ремонту:
сирий стан
Матеріал стін:
моноліт + керамоблоки
Перестінки:
цегла
Розташування:
внутрішня
Тип кімнат:
ізольовані
Санвузол:
роздільний
Меблювання:
без меблів
Тип опалення:
дахова котельня
Роки забудови:
2020-х років
Здача будинку - IV квартал 2025 року. Простора кухня-студія, спальня, просторий балкон. Опалення і гаряче водопостачання у комплексі надходить від власної котельні на даху. Утеплювач стін - мінеральна вата. Вигляд з вікон на центральну частину міста та обласну раду. Підземний паркінг, дитячий майданчик, зони для відпочинку, закрита територія від сторонніх. Кухня-студія.
Поділитися:
Ріелтор Мар'яна агенція нерухомості «Лідер» м. Тернопіль
Ріелтор Мар'яна
Код (ID): 101860
Поновлено: 02.10.2025 р.